C|P
Calvinho & Partners

Projetos

Portfólio de arquitetura — habitação, comércio, turismo e reabilitação. Cada projeto inclui plantas, descrição e fotografias.

Sem filtros ativos
Renovação Escola Internacional
Educação2025

Sintra • 1500 m²

Renovação Escola Internacional

Renovação integral das salas do 1º ao 4º ano, biblioteca e áreas administrativas de uma escola internacional.

ProjetoGestão
Ver mais
PIP- Condomínio Privado (18 Apartamentos)
Condomínio2025

Cascais • 2200 m²

PIP- Condomínio Privado (18 Apartamentos)

Projeto de arquitetura para condomínio residencial de luxo em Cascais - 18 apartamentos, 2 penthouses com terraço e garagem privativa.

PIPArquitetura
Ver mais
Eco Turismo
Turismo2025

Comporta / Alentejo • 1200 m²

Eco Turismo

Complexo de ecoturismo na Comporta com 14 bungalows, lago, centro equestre e instalações para staff.

ProjetoLicenciamento
Ver mais
Casa de Campo
Habitação Unifamiliar2025

Alentejo • 250 m²

Casa de Campo

Conversão de armazém em moradia contemporânea no Alentejo - 350m², dois pisos, piscina e vistas panorâmicas.

Licenciamento
Ver mais
Licenciamento Armazén  - Sintra
Comércio2025

Sintra • 1500 m²

Licenciamento Armazén - Sintra

Projeto de licenciamento para reabilitação de complexo de armazéns abandonados em Sintra.

LicenciamentoLegalizaçãoObra
Ver mais
Design de Interiores Apartamento T3 - Sintra
Interior2025

Sintra • 110 m²

Design de Interiores Apartamento T3 - Sintra

Projeto de design de interiores para renovação completa de apartamento T3 em Sintra.

InterioresObra
Ver mais
Boutique Hotel Rural
Turismo2024

Alentejo • 133 m²

Boutique Hotel Rural

Hotel Boutique no Alentejo - construção em pedra tradicional, pérgolas em madeira e quartos de luxo.

Licenciamento
Ver mais
Lisbon Apartment
Interior2024

Lisboa • 77 m²

Lisbon Apartment

Design de interiores para apartamento em Lisboa

Interiores
Ver mais
Republica 51 - Restaurante
Restaurante2023

Lisboa • 879 m²

Republica 51 - Restaurante

Design de interiores para cervejaria artesanal com 200 lugares - tetos escultóricos em madeira, bar em mármore e parede viva.

Estudo Prévio
Ver mais
Edificio na Av 24 de Julho
Habitação Multifamiliar2023

Lisboa • 1855 m²

Edificio na Av 24 de Julho

Edifício residencial de luxo em Lisboa com 6 pisos, rooftop com vista rio e estacionamento subterrâneo.

Estudo Prévio
Ver mais
Design de Interiores Escritório - Sintra
Interior2023

Sintra • 300 m²

Design de Interiores Escritório - Sintra

Projeto de design de interiores para escritório corporativo em Sintra com identidade visual marcante.

InterioresObra
Ver mais
Masterplan Cascais
Masterplan2022

Sintra • 2750 m²

Masterplan Cascais

Condomínio residencial no Guincho com piscina orgânica, moradias modernas e interiores contemporâneos.

Estudo Prévio
Ver mais
Palm Residences
Habitação Multifamiliar2022

Estoril • 3420 m²

Palm Residences

Edifício residencial de luxo no Estoril com fachada em azulejo dourado, e apartamentos de dimensão generosa.

Estudo Prévio
Ver mais
Quinta do Peru
Habitação Unifamiliar2022

Setúbal • 488 m²

Quinta do Peru

Design de interiores e renovação exterior de moradia unifamiliar

InterioresExteriores
Ver mais
Casa Quinta da Beloura
Habitação Unifamiliar2020

Sintra • 320 m²

Casa Quinta da Beloura

Moradia contemporânea na Quinta da Beloura - 320m², volumes horizontais, piscina com LED e garagem subterrânea.

Licenciamento
Ver mais
Stand Vesauto
Stand Automóveis2005

Sintra • 2010 m²

Stand Vesauto

Concessionário Renault com showroom, oficina e escritórios - estrutura industrial e identidade de marca.

Licenciamento
Ver mais
Beloura Office Park
Masterplan2000

Sintra • 80000 m²

Beloura Office Park

Masterplan para parque de escritórios em Sintra - edifícios modulares, espaços verdes e estacionamento integrado.

Licenciamento
Ver mais

Outros Projetos

Uma seleção de mais projetos do nosso portfólio.

Fale Connosco

Vamos projetar o seu sonho?

Selecione o assunto:

A nossa equipa está pronta para ouvir as suas ideias. Partilhe connosco a sua visão e localização.

Ligue-nos
+351 966 150 189
Email
info@calvinhoandpartners.com
Atuação
Lisboa • Cascais • Sintra • Algarve • Alentejo • Porto • Setúbal

Tem um projeto em mente? Preencha o formulário e entraremos em contacto consigo brevemente.

Ao enviar, concorda com a nossa política de privacidade.

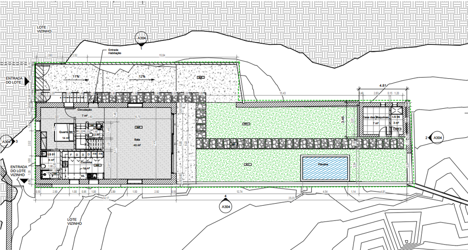
Masterplan Cascais

Sintra27502022
Estudo Prévio

Estudo prévio para condomínio residencial privado na zona do Guincho, Sintra. O masterplan organiza um conjunto de moradias em torno de uma piscina central de desenho orgânico, criando um ambiente de resort exclusivo. A arquitetura combina volumes contemporâneos com elementos em pedra natural que remetem para a tradição construtiva da região. Os jardins paisagísticos integram vegetação autóctone adaptada ao clima marítimo. Os interiores das moradias apresentam espaços de pé-direito duplo, lareiras contemporâneas e acabamentos premium.

Masterplan Cascais - 1
Clique para ampliar
1 / 9

Serviços Relacionados