Projetos
Portfólio de arquitetura — habitação, comércio, turismo e reabilitação. Cada projeto inclui plantas, descrição e fotografias.

Sintra • 1500 m²
Renovação Escola Internacional
Renovação integral das salas do 1º ao 4º ano, biblioteca e áreas administrativas de uma escola internacional.

Cascais • 2200 m²
PIP- Condomínio Privado (18 Apartamentos)
Projeto de arquitetura para condomínio residencial de luxo em Cascais - 18 apartamentos, 2 penthouses com terraço e garagem privativa.

Comporta / Alentejo • 1200 m²
Eco Turismo
Complexo de ecoturismo na Comporta com 14 bungalows, lago, centro equestre e instalações para staff.

Alentejo • 250 m²
Casa de Campo
Conversão de armazém em moradia contemporânea no Alentejo - 350m², dois pisos, piscina e vistas panorâmicas.

Sintra • 1500 m²
Licenciamento Armazén - Sintra
Projeto de licenciamento para reabilitação de complexo de armazéns abandonados em Sintra.

Sintra • 110 m²
Design de Interiores Apartamento T3 - Sintra
Projeto de design de interiores para renovação completa de apartamento T3 em Sintra.

Alentejo • 133 m²
Boutique Hotel Rural
Hotel Boutique no Alentejo - construção em pedra tradicional, pérgolas em madeira e quartos de luxo.

Lisboa • 77 m²
Lisbon Apartment
Design de interiores para apartamento em Lisboa

Lisboa • 879 m²
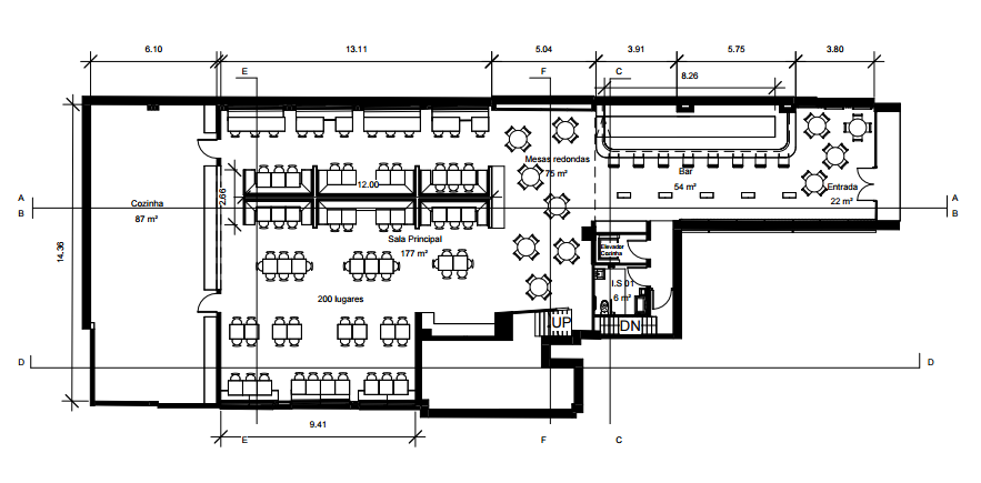
Republica 51 - Restaurante
Design de interiores para cervejaria artesanal com 200 lugares - tetos escultóricos em madeira, bar em mármore e parede viva.

Lisboa • 1855 m²
Edificio na Av 24 de Julho
Edifício residencial de luxo em Lisboa com 6 pisos, rooftop com vista rio e estacionamento subterrâneo.

Sintra • 300 m²
Design de Interiores Escritório - Sintra
Projeto de design de interiores para escritório corporativo em Sintra com identidade visual marcante.

Sintra • 2750 m²
Masterplan Cascais
Condomínio residencial no Guincho com piscina orgânica, moradias modernas e interiores contemporâneos.

Estoril • 3420 m²
Palm Residences
Edifício residencial de luxo no Estoril com fachada em azulejo dourado, e apartamentos de dimensão generosa.

Setúbal • 488 m²
Quinta do Peru
Design de interiores e renovação exterior de moradia unifamiliar

Sintra • 320 m²
Casa Quinta da Beloura
Moradia contemporânea na Quinta da Beloura - 320m², volumes horizontais, piscina com LED e garagem subterrânea.

Sintra • 2010 m²
Stand Vesauto
Concessionário Renault com showroom, oficina e escritórios - estrutura industrial e identidade de marca.

Sintra • 80000 m²
Beloura Office Park
Masterplan para parque de escritórios em Sintra - edifícios modulares, espaços verdes e estacionamento integrado.
Outros Projetos
Uma seleção de mais projetos do nosso portfólio.